4562ALC Energiezuinige nieuwbouw villa te koop in Alcalalí
- €440.000
Omschrijving
Hoogwaardige energiezuinige woningen in Alcalalí met prachtig vallei-uitzicht,
Ontdek een unieke woonkans in het hart van de Jalon-vallei: Residencial VALL DE POP, een exclusief project bestaande uit 35 percelen met moderne, vrijstaande eensgezinswoningen. Gelegen op een verhoogde locatie in Alcalalí, bieden deze villa’s een adembenemend panoramisch uitzicht over de vallei.
Deze villa’s onderscheiden zich door hun unieke bouwwijze met een geavanceerd 3D-microbetonpaneelsysteem, waarmee een uitzonderlijk hoog niveau van thermische isolatie, luchtdichtheid en structurele sterkte wordt bereikt — en dat alles binnen de gebruikelijke prijsklasse. Dankzij meerdere isolatieplaten zonder koudebruggen, luchtdichte aansluitingen en hernieuwbare energieopwekking via aerothermie, zijn deze woningen ontworpen om te voldoen aan de strenge eisen van een Passivhaus-certificering. Hoewel de officiële certificering nog afhankelijk is van de laatste test, is nu al duidelijk dat het energieverbruik minimaal zal zijn en de woningen zullen behoren tot de meest energie-efficiënte op de markt.
Kies uit drie zorgvuldig ontworpen woningmodellen, elk met zuidelijke oriëntatie voor optimale lichtinval en comfort het hele jaar door.
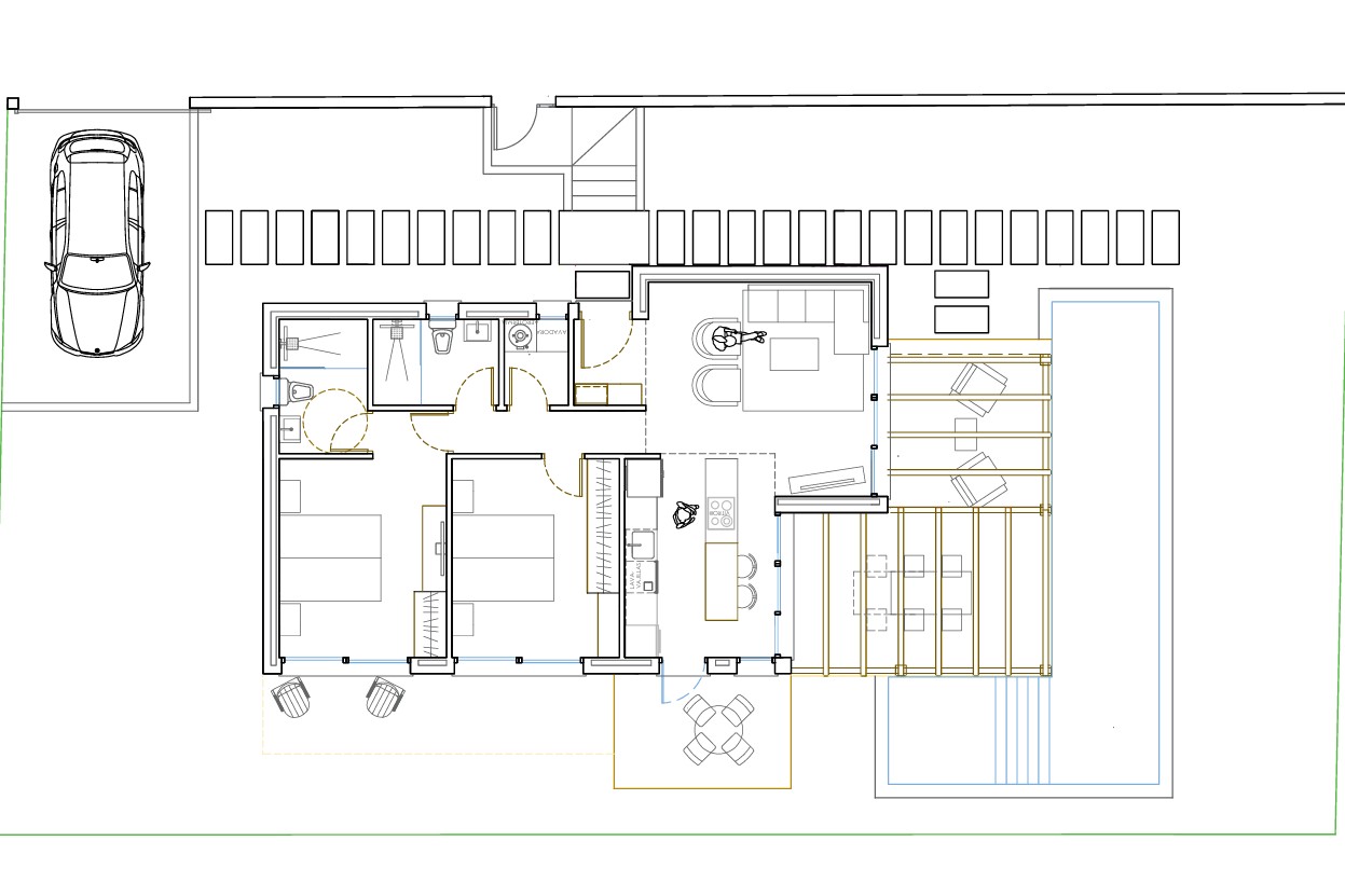
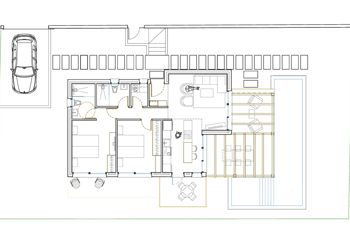
Model tiny
Een doordacht ontworpen woning met een bebouwde oppervlakte van 140 m2 met 2 comfortabele slaapkamers en 2 moderne badkamers. Ideaal voor gezinnen of als praktische vakantiewoning. Alles wat je nodig hebt, in een slimme en efficiënte indeling voor € 440.000
Model medium
Een nieuwe indeling met een ruimere woonkamer en hoofdslaapkamer. Geniet van extra wooncomfort en meer leefruimte, zowel binnen als buiten voor €466.000
Model Spacious
Een villa met dezelfde indeling als model tiny maar met een bebouwde oppervlakte van 155 m2 voor €490.500
De plannen en renders zijn van model tiny, plannen van andere modellen beschikbaar op aanvraag.
De villa’s zullen voorzien worden van een volledig uitgeruste open keuken met BOSCH inbouwapparatuur, granieten werkblad en een kookeiland met een inductieplaat. De badkamer zullen ingericht worden met kwalitatief badkamermeubilair van het merk Porcelanosa en een moderne regendouche.
Daarnaast zijn er meer dan 30 grondstukken beschikbaar, zodat je het perceel kunt kiezen dat het beste bij jouw wensen past.
Een tuin is optioneel en niet inbegrepen in de standaardprijs – dit biedt flexibiliteit voor wie zelf de buitenruimte wil vormgeven. Wel beschikt elke villa over meerdere terassen, pergola’s en een verharde parkeerplaats. Dankzij de strategische ligging geniet je van privacy, rust en natuur, terwijl het gezellige, historische centrum van Alcalalí en andere voorzieningen al wandelend bereikbaar zijn.
Een unieke kans om uw eigen moderne nieuwbouw villa in de Jalon vallei te bezitten.
Meer informatie op aanvraag.
Adres
-
Adres: Alcalali
-
Plaats: Alcalali
-
Provincie: Alicante
-
Wijk/gebied: La Solana Gardens
-
Land: Spanje
Details
Updated on januari 16, 2026 at 9:35 pm-
Referentienummer HZ4562ALC
-
Prijs €440.000
-
Woningoppervlakte 140
-
Grondstuk 350
-
Slaapkamers 2
-
Badkamers 2
-
Garage 1
-
Woningtype Villa
-
Objectstatus Nieuwbouw

































