4599ALC Ibizastijl villaproject met licentie te koop in Alcalalí,
- €765.000
Omschrijving
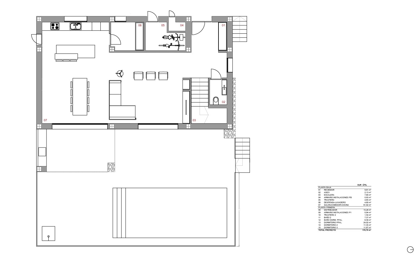
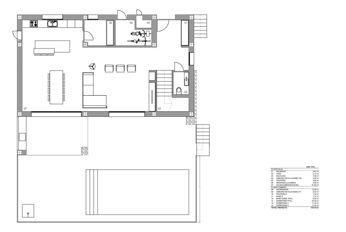
Gelegen in het idyllische dorp Alcalalí bevindt zich dit nieuwbouwproject met verleende bouwvergunning. Met een geplande bebouwde oppervlakte van 211 m2 op een royaal perceel van 1.021 m2 biedt dit project de mogelijkheid om een prachtige Ibiza stijl villa te laten bouwen in de rustige, natuurlijke omgeving van de Jalón vallei.
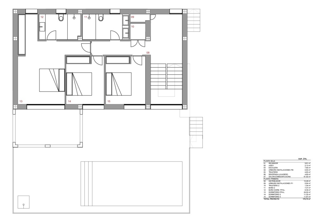
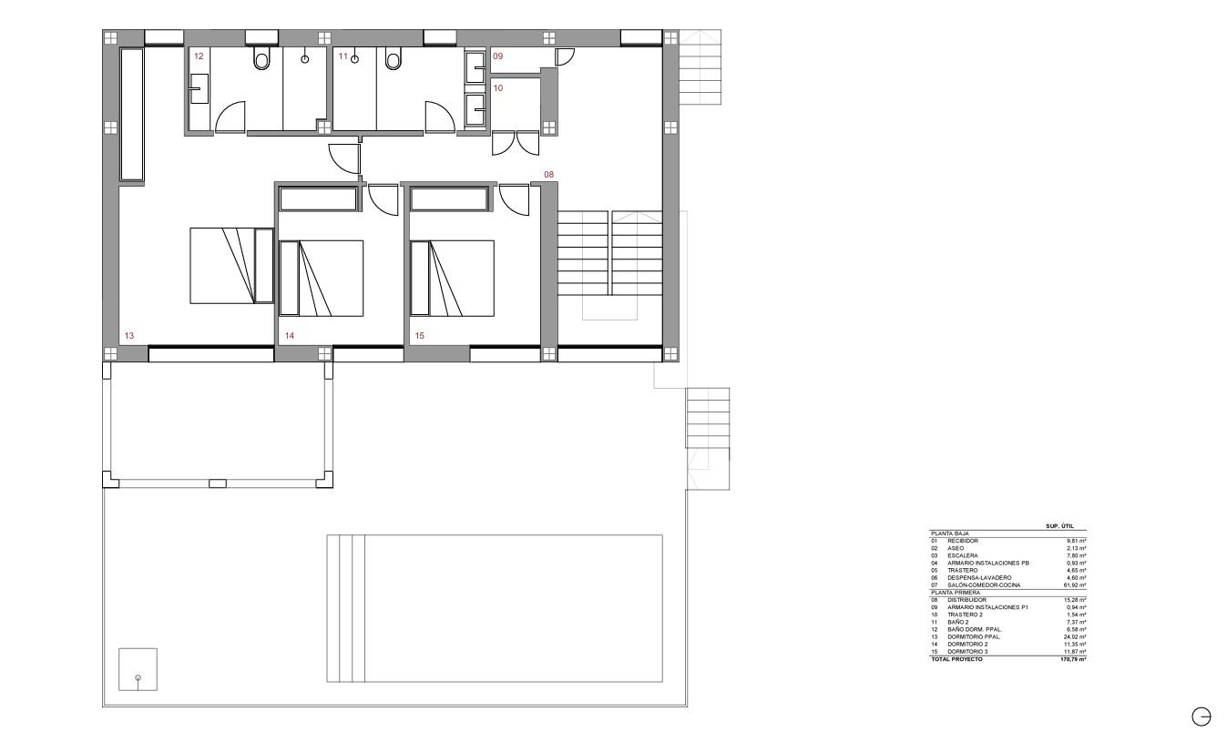
Het project voorziet een villa die zal worden gerealiseerd over twee verdiepingen. Op de benedenverdieping is een ruime woon-eetkamer gepland met een open keuken voorzien van kookeiland, aangevuld met een voorraadkast, opslagruimte en een gastentoilet. De bovenverdieping is ontworpen met drie comfortabele slaapkamers en twee stijlvol vormgegeven badkamers die functionaliteit en esthetiek combineren, waarvan één en-suite. De indeling van het project is zorgvuldig uitgewerkt om een optimale benutting van de ruimte te garanderen en een natuurlijke flow te creëren tussen de verschillende leefruimtes.
Daarnaast is de privétuin ontworpen om volop te genieten van de buitenlucht en de natuur in volledige privacy, evenals twee terrassen waar het mediterrane klimaat het hele jaar door beleefd kan worden.
Verder is er een zwembad van 8 x 4 meter voorzien, ideaal voor verfrissing tijdens de warme zomermaanden. De buitenruimtes zullen bestaan uit zowel een open terras als een overdekt terras, zodat er steeds keuze is tussen zon en schaduw. Het perceel zal volledig worden omheind, wat zorgt voor veiligheid en gemoedsrust, terwijl de goede aansluiting op nabijgelegen hoofdwegen een vlotte bereikbaarheid van lokale voorzieningen en bezienswaardigheden garandeert.
De villa zal worden uitgerust met airconditioning voor verwarming en koeling via luchtkanalen, waardoor in elke ruimte een aangenaam binnenklimaat wordt gecreëerd, ongeacht het seizoen. Dubbele beglazing, automatische rolluiken in de slaapkamers en de voorziene parkeermogelijkheden en opslagruimte dragen bij aan extra wooncomfort.
Dit project vertegenwoordigt niet enkel de realisatie van een woning, maar een levensstijl waarin rust, comfort en moderne luxe samenkomen in het charmante Alcalalí. Met zijn eigentijdse architectuur en doordachte voorzieningen vormt dit project een uitnodiging om dagelijks te genieten van een uitzonderlijke woonomgeving waar de tijd lijkt stil te staan.
Adres
-
Adres: Alcalali
-
Plaats: Alcalali
-
Provincie: Alicante
-
Wijk/gebied: Benarossa Gardens
-
Land: Spanje
Details
Updated on januari 16, 2026 at 9:45 pm-
Referentienummer HZ4599ALC
-
Prijs €765.000
-
Woningoppervlakte 419
-
Grondstuk 1021
-
Slaapkamers 3
-
Badkamers 2
-
Garages 2
-
Woningtype Villa
-
Objectstatus Nieuwbouw













