4313ALC Moderne villa in aanbouw te koop in Alcalali
- €630.000
Omschrijving
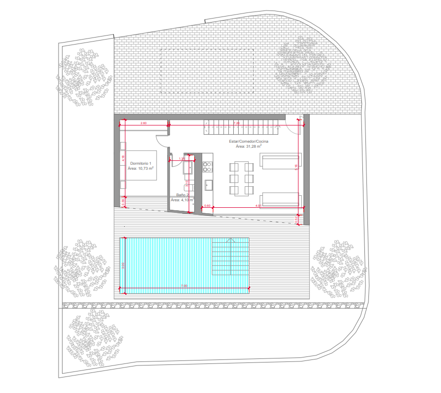
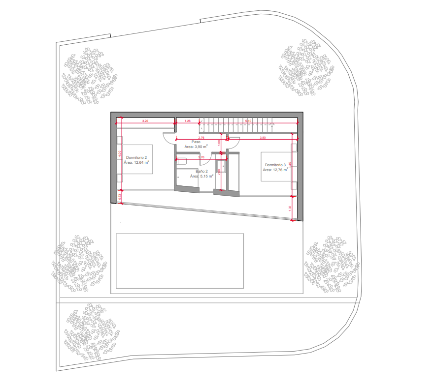
Deze villa wordt gebouwd op een grondstuk in de rustige wijk La Solana Gardens op wandelafstand van het pittoreske dorpje Alcalali. Alcalali is een klein, authentiek dorpje gelegen in de zonnige vallei genaamd Valle de Pop omringd door majestueuze bergketens, maar toch kort bij de kust. De villa is verdeeld over drie verdiepen. De benedenverdieping bestaat uit een woo-eetkamer met een open keuken, een tweepersoonsslaapkamer en een badkamer. De bovenverdieping bestaat uit twee tweepersoonsslaapkamers met een gedeelde badkamer. In de semi-kelderverdieping bevindt zich een garage van 80 m2.In de prijs is ook een zwembad en een terras van 30 m2 inbegrepen. Alcalalí heeft een zeer centrale ligging, op 20 minuten bereik je zowel de stranden van Denia als die van Calpe. Ook de leuke kustdorpjes Javea en Moraira zijn op een half uurtje te bereiken. Andere dorpen in de vallei zoals Jalón, Parcent, Lliber zijn op 5 minuten te bereiken. Alcalalí is perfect om te wandelen en te fietsen tussen olijfbomen, sinaasappelbomen, amandelbomen en wijngaarden. Bovendien zijn in de omringende bergketens meerdere prachtige wandelroutes.
Adres
-
Adres: Alcalali
-
Plaats: Alcalali
-
Provincie: Alicante
-
Postcode: 03728
-
Land: Spanje
Details
Updated on januari 16, 2026 at 9:15 pm-
Referentienummer HZ4313ALC
-
Prijs €630.000
-
Woningoppervlakte 133
-
Grondstuk 300
-
Slaapkamers 3
-
Badkamers 2
-
Bouwjaar 2024
-
Woningtype Villa
-
Objectstatus Nieuwbouw










