8325MOR Villaproject met uitzicht op zee, in aanbouw, te koop in Moraira.
- €2.300.000
Omschrijving
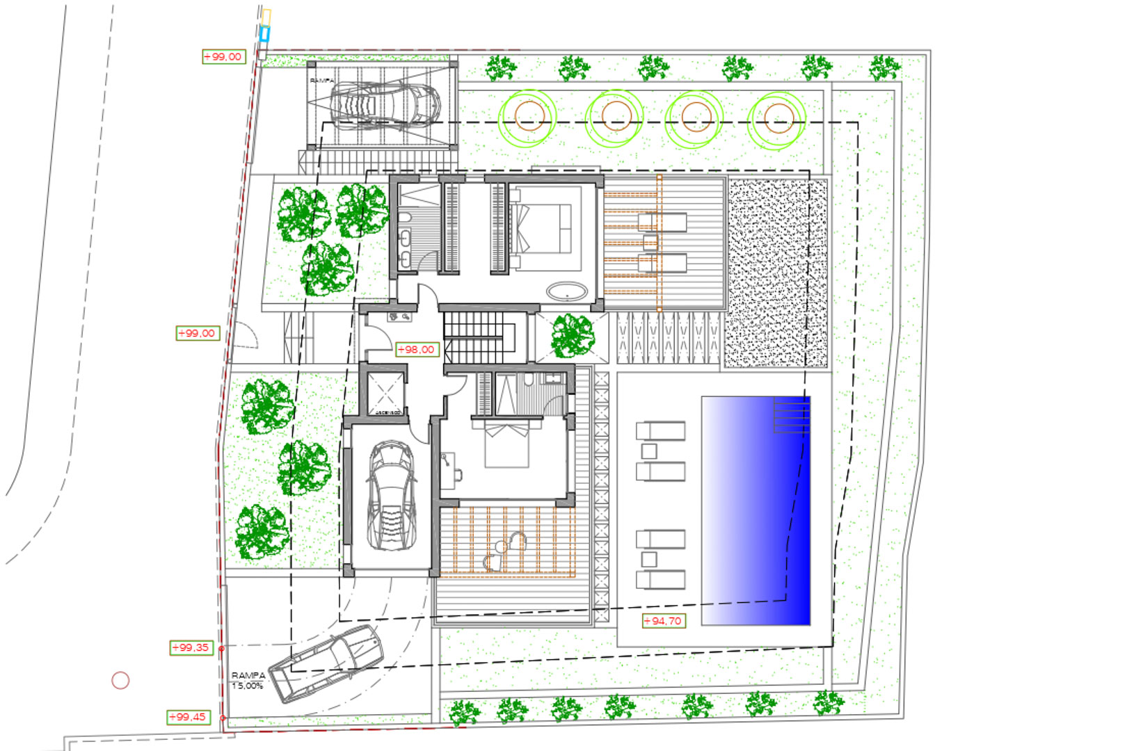
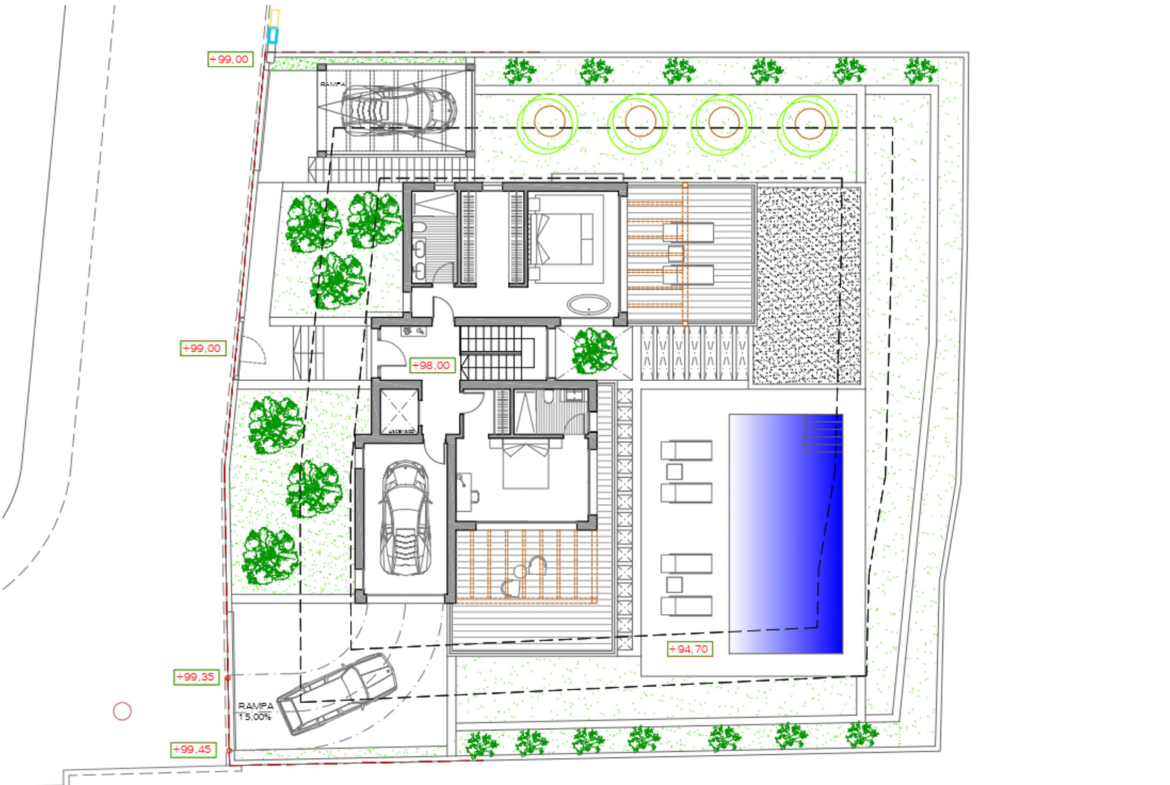
Moderne, nieuwbouwvilla in aanbouw met panoramisch uitzicht op zee, gelegen in de wijk El Tesoro in Moraira.
De woning is verdeeld over drie verdiepingen, verbonden door een lift en een trap, en is georiënteerd op het zuidoosten. Afwerkingen en definitieve specificaties kunnen momenteel worden gekozen, afhankelijk van beschikbaarheid en in overleg.
Sofa-verdieping: Drie multifunctionele ruimtes, twee complete badkamers, een gastentoilet, een wasruimte en een berging.
Begane grond: Woon-eetkamer met open keuken en aparte bijkeuken, twee slaapkamers met eigen badkamer en toegang tot een terras en zwembad, en een gastentoilet. Buitenvoorzieningen omvatten een zwembad, een barbecue en diverse terrassen.
Bovenverdieping (toegang): Entreehal, lift en twee tweepersoonsslaapkamers met eigen badkamer. Buitenvoorzieningen omvatten een garage, parkeerplaats en terrassen.
Gelegen in een rustige en gevestigde woonwijk, op korte afstand van het centrum van Moraira, stranden, baaien, voorzieningen en de jachthaven.
Adres
-
Adres: Moraira
-
Plaats: Moraira
-
Provincie: Alicante
-
Wijk/gebied: El Tesoro
-
Land: Spanje
Details
Updated on februari 3, 2026 at 4:03 pm-
Referentienummer HZ8325MOR
-
Prijs €2.300.000
-
Woningoppervlakte 440
-
Grondstuk 828
-
Slaapkamers 4
-
Badkamers 8
-
Bouwjaar 2026
-
Woningtype Villa
-
Objectstatus Nieuwbouw
Energieklasse
-
Energieklasse: A
- A+
- | Energieklasse AA
- B
- C
- D
- E
- F
- G
- H















