27
  • 7114PED
  • Referentienummer
  • Woningtype
  • Villa
  • 4
  • Slaapkamers
  • 6
  • Badkamers
  • 1
  • Garage
  • 300
  • Area Size
  • 1070
  • Grondstuk
  • 1982
  • Bouwjaar
7114BEN | Modern mediterraan renovatieproject in La Fustera, Benissa Costa
  • €2.250.000

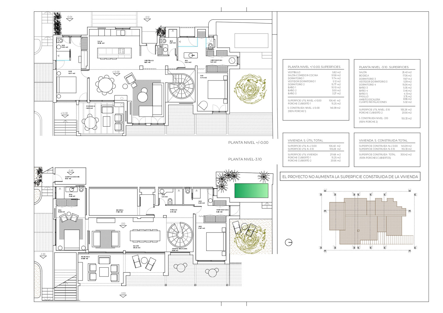
Omschrijving

Gelegen in de gewilde woonwijk La Fustera, Benissa Costa, op korte afstand van het strand, restaurants en lokale voorzieningen, vertegenwoordigt dit project een unieke kans om een hoogwaardige mediterrane woning te creëren op een van de meest gewilde locaties aan de Costa Blanca Noord.

Dit is een uitgebreid renovatieproject, klaar om te starten, ontworpen om een bestaande woning te transformeren tot een verfijnde en hedendaagse residentie. Het concept combineert modern comfort met tijdloze mediterrane architectuur, met een focus op natuurlijke materialen, warme tinten en ruime leefruimtes.

Het project omvat vier slaapkamers en vier badkamers, evenals twee gastentoiletten. De indeling is ontworpen om zowel functionaliteit als flexibiliteit te bieden, met twee onafhankelijke woonruimtes verdeeld over de boven- en benedenverdieping.

In het hart van de woning creëert een open keuken en eetruimte een centrale ruimte voor dagelijks wonen en ontvangen. Een opvallende architectonische trap verbindt beide niveaus en dient als een belangrijk ontwerpelement van de villa.

De buitenruimtes zijn ontworpen om de mediterrane levensstijl te maximaliseren, met ruime terrassen, aangelegde tuinen en een zwembad. Daarnaast beschikt de suite op de begane grond over een privé wellnessruimte buiten, inclusief een jacuzzi-achtig dompelbad gelegen in een eigen tuinruimte.

De woning beschikt ook over parkeer- en pergola-ruimtes, evenals meerdere buitenhoeken ontworpen voor ontspanning en privacy, waardoor een naadloze verbinding tussen binnen- en buitenleven ontstaat.

Gelegen in een rustige woonomgeving dicht bij de zee, biedt dit project een uitstekende kans om een onderscheidende woning te ontwikkelen met karakter, privacy en sterke ontwerpwaarde.

Adres

  • Adres: Benissa
  • Plaats: Benissa
  • Provincie: Alicante
  • Wijk/gebied: La Fustera
  • Land: Spanje

Details

Updated on april 10, 2026 at 3:15 pm
  • Referentienummer HZ7114PED
  • Prijs €2.250.000
  • Woningoppervlakte 300
  • Grondstuk 1070
  • Slaapkamers 4
  • Badkamers 6
  • Garage 1
  • Bouwjaar 1982
  • Woningtype Villa
  • Objectstatus Resale

Vergelijkbare objecten

Compare listings

Compare