4551JAV Prachtige traditionele nieuwbouw villa te koop in Piver, Jávea
- €1.190.000
Omschrijving
Prachtige traditionele nieuwbouw villa te koop in Jávea,
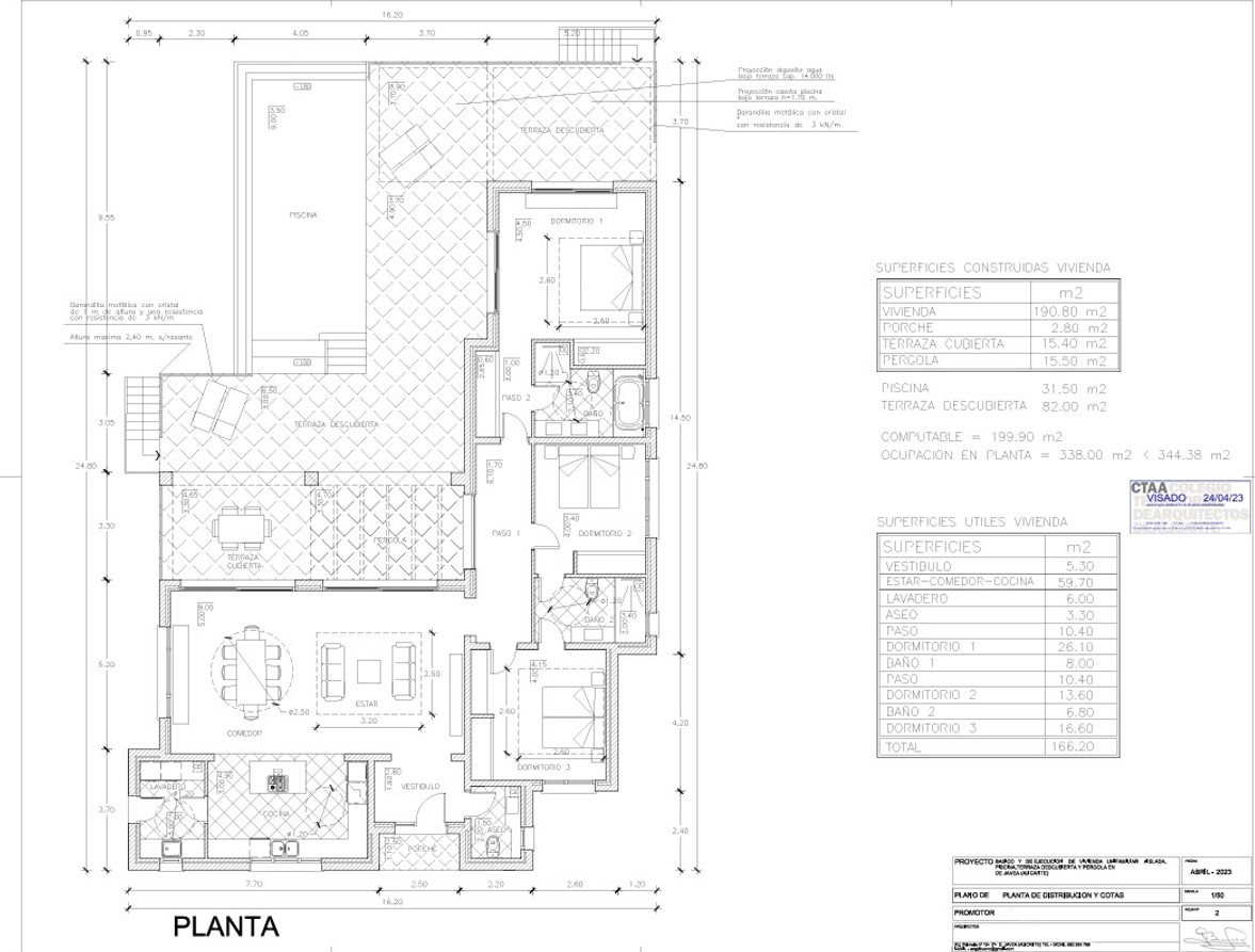
Deze exclusieve nieuwbouwvilla, gelegen in de mooie urbanisatie Piver, biedt een adembenemend uitzicht op de imposante Montgó en het bergachtige binnenland. De villa ligt op een ruim perceel van 1.147,94 m2 en is volledig gelijkvloers ontworpen voor optimaal comfort en toegankelijkheid. Bij binnenkomst leidt een stijlvolle hal met gastentoilet naar de ruime woon-eetkamer, waar grote ramen zorgen voor overvloedig natuurlijk licht en een prachtig uitzicht op de Montgó. Aansluitend bevindt zich een moderne, volledig uitgeruste keuken met een praktische wasruimte die direct toegang biedt tot de buitenzijde. Via schuiframen in de woonkamer betreedt u het uitnodigende terras met zwembad, ideaal om te genieten van het uitzicht en het mediterrane klimaat. In het slaapgedeelte bevinden zich drie slaapkamers, waaronder een elegante hoofdslaapkamer met en suite badkamer en directe toegang tot het terras, terwijl de twee andere slaapkamers een tweede badkamer delen. De buitenruimte is een oase van rust met een overdekt terras, een pergola, een ruim zonneterras en een onderhoudsvriendelijke mediterrane tuin. Met twee parkeerplaatsen op eigen terrein, en een locatie op slechts 2 km van het historische centrum en 3 km van de kust, combineert deze villa luxe, privacy en een uitstekende bereikbaarheid.
De villa is momenteel in aanbouw en zal eind 2025 opegeleverd worden (onder voorbehoud.
Adres
-
Adres: Javea
-
Plaats: Javea
-
Provincie: Alicante
-
Wijk/gebied: Piver
-
Land: Spanje
Details
Updated on december 29, 2025 at 9:05 pm-
Referentienummer HZ4551JAV
-
Prijs €1.190.000
-
Woningoppervlakte 337
-
Grondstuk 1147
-
Slaapkamers 3
-
Badkamers 2
-
Garages 2
-
Bouwjaar 2025
-
Woningtype Villa
-
Objectstatus Nieuwbouw






































